Drzwi pancerne Typ PT-3
Najważniejsze cechy produktu:
- Model PT-3 – do montażu w ścianie poprzez zalanie betonem,
- wysoka odporność na czynniki mechaniczne i balistyczne,
- ochrona przed falą uderzeniową, promieniowaniem i toksycznymi gazami,
- kuloodporność – zgodna z wymaganiami dla drzwi do zastosowań w sytuacjach konfliktowych i terrorystycznych,
- trwałe, wielowarstwowe uszczelnienia gazoszczelne,
- łatwa obsługa mimo masywnej konstrukcji,
- kompatybilność z systemami wentylacji i filtracji schronu.
Opis
Drzwi pancerne do schronu – Typ PT-3
Drzwi pancerne Typ PT-3 to specjalistyczne zabezpieczenie przeznaczone do stosowania w schronach ochrony cywilnej, obiektach wojskowych oraz bunkrach prywatnych i przemysłowych. Ich konstrukcja została opracowana z myślą o zapewnieniu maksymalnej ochrony przed skutkami eksplozji, promieniowania oraz przenikaniem gazów toksycznych.
Model PT-3 wykonany jest jako element zalewany betonem, co pozwala na jego trwałe zespolenie ze ścianą konstrukcyjną schronu. Dzięki temu drzwi stają się integralną częścią bryły żelbetowej, zwiększając odporność całości na ekstremalne warunki zewnętrzne.
Drzwi PT-3 posiadają wzmocnioną strukturę, która zapewnia odporność na wysokie ciśnienie, fale uderzeniowe, odłamki po wybuchach oraz ostrzał z broni palnej. Są również wyposażone w gazoszczelne uszczelnienia oraz specjalistyczny system ryglowania, gwarantujący szczelność i bezpieczeństwo użytkowników w przypadku zagrożeń CBRN (chemicznych, biologicznych, radiologicznych, nuklearnych).
Drzwi pancerne Typ PT-3 to sprawdzone i trwałe rozwiązanie konstrukcyjne, które łączy w sobie odporność na zagrożenia militarne i środowiskowe z funkcjonalnością i bezpieczeństwem użytkowania. Ich zastosowanie to kluczowy krok w kierunku budowy skutecznego systemu ochrony ludzi i mienia w sytuacjach kryzysowych.
Charakterystyka
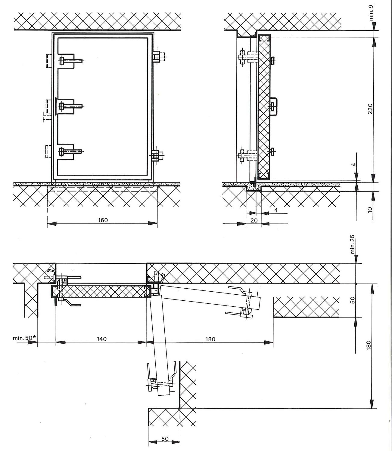
Wymiary wnęki/światło drzwi:
- szerokość: 140cm
- wysokość: (bez progów) 220cm
- grubość: 20 cm
- stopień ochrony: 3 bar
- waga bez betonu: 485kg











